Foxford Community School – Walkway Canopy Structure
Case Study
Client:
Foxford Community School Coventry
Project Overview:
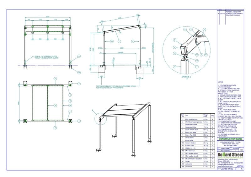
Bollard Street was tasked with designing, fabricating, and installing a custom walkway canopy for a local school. The structure was designed to connect the main school building to a newly constructed canteen block, spanning 77 linear meters. The project aimed to provide safe, sheltered access for students and staff while enhancing the overall aesthetics of the school grounds.
The bespoke canopy installation has improved the school’s infrastructure by providing a durable and attractive solution that enhances both functionality and student safety. The walkway canopy demonstrates Bollard Street’s commitment to delivering custom solutions that meet the unique needs of educational environments.
Products supplied included:
- Bespoke mild steel canopy structure finished in RAL7016 with twin wall plastic glazing manufactured to suite site falls




